Clients

Vienne Condrieu Agglomération

Activités

Divisions foncières

Copropriété

Division en volumes

Localisation

Vienne, 38200

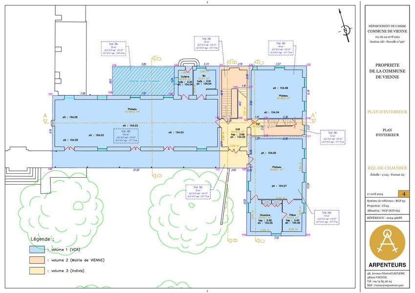
La Farandole à Vienne

Dans le cadre d’installation de services publics sous gérance de l’agglomération le bâtiment « La Farandole » a fait l’objet d’une division en volumes.

Nous avons accompagné les services de la ville et de Vienne Condrieu Agglomération pour établir le dossier technique comprenant relevés et plans intérieurs, plans de coupes, plans volumétriques, plan de division et modification du parcellaire cadastral…

Nous avons également travaillé en collaboration avec les notaires pour le repérage et l’établissement des servitudes existantes et à constituer.

top

Topographie

Etablissement de plans topographiques, d'intérieurs, façades, récolement de réseaux ou auscultation d'ouvrages... nos interventions sont souvent le préalable au travail des acteurs de l'immobilier : architectes, promoteurs, aménageurs, collectivités locales....

Bureau d'Etudes V.R.D.

Conception de lotissement, études et suivi de travaux pour la promotion immobilière, aménagement urbain et études hydrauliques, découvrez ces actitités, étroitement liées à nos missions topographiques et foncières et regroupées au sein d'un pôle de dédié.

Professionnels

  • Vous avez un projet de construction, d’agrandissement ou d’aménagement de voirie ?
  • Vous voulez connaitre les possibilités d’aménagement de votre terrain ?
  • Vous souhaitez faire un lotissement, une zone d’activités ?
  • Vous avez un projet d’ouvrage hydraulique ?
  • Vous souhaitez un bureau d’études pour constituer une équipe pluridisciplinaire ?
  • Vous souhaitez un contrôle de précision sur un ouvrage ?

Particuliers

  • Vous devez faire borner votre terrain ?
  • Vous souhaitez obtenir les plans de votre propriété ?
  • Vous voulez modifier votre lot de copropriété ?

Collectivités

  • Vous avez un projet de voirie ou d’assainissement ?
  • Vous souhaitez réaliser un nouvel aménagement comme un lotissement et souhaitez confier à un professionnel la réalisation d’une esquisse d’aménagement et les dossiers réglementaires nécessaires ?
  • Vous souhaitez un plan topographiqueun plan parcellaire ?
  • Vous souhaitez réaliser un bornage ?
  • Vous recherchez un professionnel pour une étude de faisabilité et un chiffrage des coûts de travaux ?
  • Vous souhaitez avoir un interlocuteur unique pour gagner en simplicité ? 

Comment pouvons nous vous aider ?

Les informations recueillies à partir de ce formulaire sont nécessaires à l’instruction de votre demande. Elles sont enregistrées et transmises aux services en charge de son traitement. Pour en savoir plus sur la collecte de vos données, cliquez-ici

Nos agences :

48 avenue général Leclerc – 38200 VIENNE

04.74.85.26.24 – vienne@arpenteurs.pro

Givors

13 rue de la République – 69700 GIVORS

04.78.73.01.66 – givors@arpenteurs.pro

47 rue centrale – 69360 ST SYMPHORIEN D’OZON

04.78.02.73.98 – sso@arpenteurs.pro

St Jean de Bournay

10 rue Pasteur – 38440 ST JEAN DE BOURNAY

04.74.58.71.65 – sjb@arpenteurs.pro

St Maurice l'Exil

29 espace Marcel Noyer – 38550 ST MAURICE L’EXIL

04.74.11.12.62 – sme@arpenteurs.pro

Serrières

11 rue Jean Vernet – 07340 SERRIERES

04.75.34.06.96 – serrieres@arpenteurs.pro

Vous avez un projet ?

PARLONS EN !